Piso de 82m2 en calle aldana, en Barcelona, Eixample, Barcelona

8015, Barcelona, Barcelona
425.000€ 82m2 | 5.183€/m2

Descripción

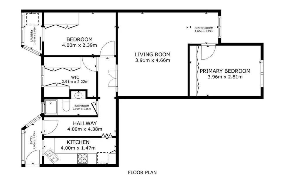
Si buscas un hogar definitivo en el Eixample, donde la luz y la tranquilidad sean protagonistas, este piso puede ser el tuyo. Situado en Calle Aldana, en una finca con ascensor, se trata de una vivienda alta y exterior a amplio patio de manzana, lo que garantiza mucha luz natural y un ambiente muy silencioso. ? Distribución cómoda y equilibrada: Salón comedor con dos zonas diferenciadas (estar y comedor) Tres dormitorios: uno doble y dos individuales Cocina independiente Baño completo La vivienda se presenta en excelente estado de conservación, recién pintada, con suelos y puertas nuevos, y una imagen actual y acogedora que invita a entrar a vivir desde el primer día. Dispone además de altillo, preinstalación para calefacción y split de aire acondicionado con bomba de calor en el salón comedor, así como ventilación cruzada que garantiza frescor y confort durante todo el año.


Ref. Llar1696 - Precio: 425.000€

Caracteristicas

  • Año construcción 1960
  • Nº de baños 1
  • Nº de dormitorios 3
  • Ascensor
  • Dormitorios individuales 2
  • Dormitorios dobles 1
  • Galería
  • Biblioteca
  • Horno
  • Acceso silla ruedas
  • Cerca colegios
  • Cerca farmacia
  • Cerca centro comercial
  • Cerca supermercado
  • Cerca metro
  • Cerca centros deportivos
  • Parque infantil
  • Emisiones CO2 (kg CO2/m2 año) 21

  • Altillos: Si
  • Categoría de les emisiones: D
  • Categoría del consumo energético: E

Certificación energética

  • Categoría de les emisiones D
  • Categoría del consumo energético E

Cargando datos. Un momento, por favor...